Garaje de madera es una gran alternativa a la compra de un edificio de hormigón caro. Las paredes del garaje están hechas de tablero T&G de 28 mm. Un lugar perfecto para mantener su coche seguro y a salvo de la lluvia y la nieve.
| Especificaciones técnicas | |
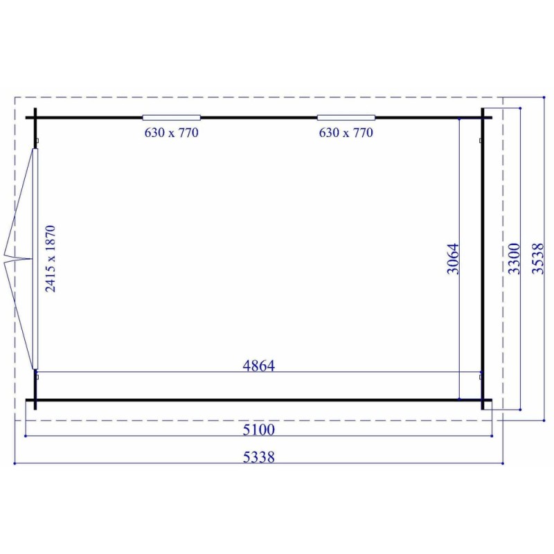
| Ancho externo | 3.3m |
| Profundidad externa | 5.1m |
| Altura interior del alero | 2.10m |
| Altura de la cresta | 2.50m |
| Espesor de pared | 28 mm |
| Área Interna | 15.15 m² |
| Suelo | 19 mm *OPCIONAL |
| Techo | Ca 20.52 m² , 19 mm |
| Tamaño de apertura de puerta | 240x187cm + 81x176cm |
| Número de ventanas | 2x fijo |
| Material de acristalamiento | Vidrio Real de 3 mm (acristalamiento simple) |
| Material | Abeto nórdico, sin tratar |
| Información adicional | Viguetas de cimentación tratadas, tirantes contra el viento, kit de montaje, cristal auténtico en ventanas y puertas, cerradura de cilindro, manual del producto. |














